New Development Activity in the area

Discussion in 'Discussion Group' started by jesse82nc, Aug 14, 2020.

  1. Smithers

    Smithers Well-Known Member

    No, most of us here are particularly doubtful of the rumors. However when you consider, 1) there is land actually being rezoned, and 2) the requestor has previously developed shopping centers with Publix as the anchor, and 3) a Realtor mentions it in a nearby listing (I'd give the Realtor a *little* bit more credence than the average internet rumor)

    Where there's enough smoke, there may actually be fire.
     
    markfnc likes this.
  2. wcdknows

    wcdknows Member

    Yes, it was a typo. Just wondering if the Taco Bell/KFC on 70 is getting remodeled?
     
  3. lgb0250

    lgb0250 Well-Known Member

    Im just a little skeptical of having three out of the 4 corners having grocery stores on them! but then again it works for other big box stores so who knows?
     
  4. Smithers

    Smithers Well-Known Member

    OK, digging into the Publix theory a little bit more, on a lazy Sunday morning...

    I found the rezoning request in the April Planning Commission agenda. It starts on page 71.

    The applicant is the White Development Company from Clearwater, FL. They recently developed several shopping centers anchored by Publix in Alabama and Florida. But they've developed other Publix shopping centers going back years (at least 10, maybe more). So, there's definitely a long term relationship between the two.

    So, does White Development Company make shopping centers that AREN'T anchored by Publix? I searched as best I could, and I couldn't find anything that didn't mention Publix. Maybe that's only because the new Publix stores were newsworthy.

    This zoning request is for 35 acres. The Publix shopping center in Clayton sits on 6.66 acres. The Publix at Wendell Falls sits on 5.86 acres. The Publix in Cary on Kildaire Farm Rd is on 47 acres, but most of that is open land and a pond, and that shopping center existed long before Publix moved in. The Publix on Leesville Rd in Raleigh is on 7.5 acres.

    The rezoned lot is quite a bit larger than other Publix shopping centers, but maybe they left room for large retention ponds or drainage or something. And it does seem kind of extreme for there to be two other grocery stores across the street.

    All in all, I'm leaning toward the Publix theory being legit. Only about 60% or so, but there are several indicators it could be true. Unless someone wants to get on the phone and cold call White Development Company to see if they'll spill the beans...
     
    markfnc likes this.
  5. lgb0250

    lgb0250 Well-Known Member

    markfnc likes this.
  6. Mr. Wolf

    Mr. Wolf Member

    Anchor stores that make more sense in the area:
    1) CostCo
    2) Home Depot
    3) Target
     
    Rockyv58 and NOT WOKE like this.
  7. markfnc

    markfnc Well-Known Member

  8. Wayne Stollings

    Wayne Stollings Well-Known Member

  9. markfnc

    markfnc Well-Known Member

  10. markfnc

    markfnc Well-Known Member

    Anyone know what is going in on NC 42 (just east on NC 50) on the large lot that was cleared a while back? Between 50 & Nicklaus Dr. They put up a sign saying coming soon, but haven't been able to read it yet. " Future home of Eastern ..........."
     
  11. markfnc

    markfnc Well-Known Member

    upload_2022-9-23_7-50-42.jpeg
     
  12. Smithers

    Smithers Well-Known Member

    Here's their website where they talk about looking for a site for the new center. Even though the video was posted 18 months ago and they've obviously found their site, the video only has 3 views. I think they said the building shown at the top of the web page is in Rock Hill.
    https://encamez.org/future-center/
     
    markfnc likes this.
  13. markfnc

    markfnc Well-Known Member

    Per Triangle Biz Journal (pay article) this is growing from 70 acres to 270 acres.
     
  14. jesse82nc

    jesse82nc Well-Known Member

    I'm curious where, as there isn't much land around that 70 acres that is vacant. There's some Coats property across the highway, but I haven't heard of them selling any time soon. Even then, I don't think it would total 270.
     
    markfnc likes this.
  15. markfnc

    markfnc Well-Known Member

  16. jesse82nc

    jesse82nc Well-Known Member

    markfnc likes this.
  17. jesse82nc

    jesse82nc Well-Known Member

    Two new ones near the Copper District are now in the approval phase. To remember - Copper district is already approved with the info below:
    https://craigdavisproperties.com/th...-district-to-serve-rapidly-growing-community/
    https://www.google.com/maps/place/3...e492366715!7e2!8m2!3d35.6251365!4d-78.5050234
    • 700,000 square feet of office space
    • 90,000 square feet of commercial/retail use
    • up to 480 apartments/condominiums
    • up to 140 single family/townhome lots
    • 120 hotel rooms
    https://www.bizjournals.com/triangl...-district-clayton-nc-new-homes-expansion.html
    Exclusive: Clayton development with new homes, retail eyes huge expansion to 4M square feet




    https://www.google.com/maps/place/3...7a5c25b88da!7e2!8m2!3d35.631807!4d-78.4880793

    Short Johnson
    22 acres
    3-5 units per acre
    short johnson master plan.jpg


    https://www.google.com/maps/place/3...9fe8c7913b!7e2!8m2!3d35.6244036!4d-78.4989077

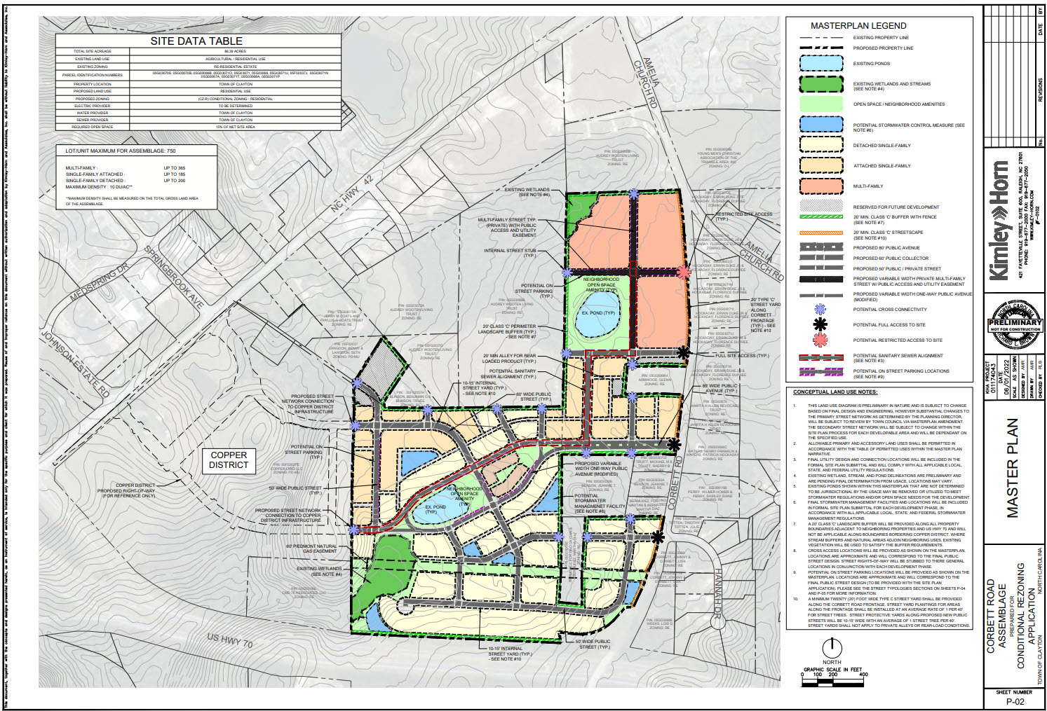
    Corbett Road Assemblage
    86 acres
    The ~86.4 - acre master plan proposes up to 750 residential lots/units comprised of up to 365 multifamily residential dwelling units, and up to 385 single family attached and detached units
    corbett road assemblage master plan.jpg
     
    markfnc likes this.
  18. jesse82nc

    jesse82nc Well-Known Member

    This makes a total of 1,468 new units in the greater Copper District area. In addition to 700,000 sq ft of Class A office space in multple 6-10 story office buildings. Along with a new library, water tower, restuarants, shopping, and more.

    That is easily a small town in its self.
     
    markfnc likes this.
  19. jesse82nc

    jesse82nc Well-Known Member

    Both were approved tonight at the Planning Board.
     
    markfnc likes this.
  20. markfnc

    markfnc Well-Known Member

    NCDOT better bump up the NC 42 (2 lanes each way plus center turn lane) to a priority.
     

Share This Page