New Development Activity in the area

Discussion in 'Discussion Group' started by jesse82nc, Aug 14, 2020.

  1. tassy

    tassy Well-Known Member

    Sign went up on the building today, it will be Moonrunners 2nd location. Their
    FB replies to comments say they're hoping to be open in about a month.
     
    markfnc and Judge Smails like this.
  2. Rockyv58

    Rockyv58 Well-Known Member

    is the original one over on 70 in Garner across from Lowes home improvement? I Know they were on Bar Rescue years ago
     
  3. tassy

    tassy Well-Known Member

    Yes, that's the one.
     
  4. Ryin

    Ryin Member

    All right y’all I need some help. This is right around the corner from my house. At the corner of Benny Road and Cole Road. The equipment is already out there clearing the land. What can y’all find out for me?
     

    Attached Files:

  5. tassy

    tassy Well-Known Member

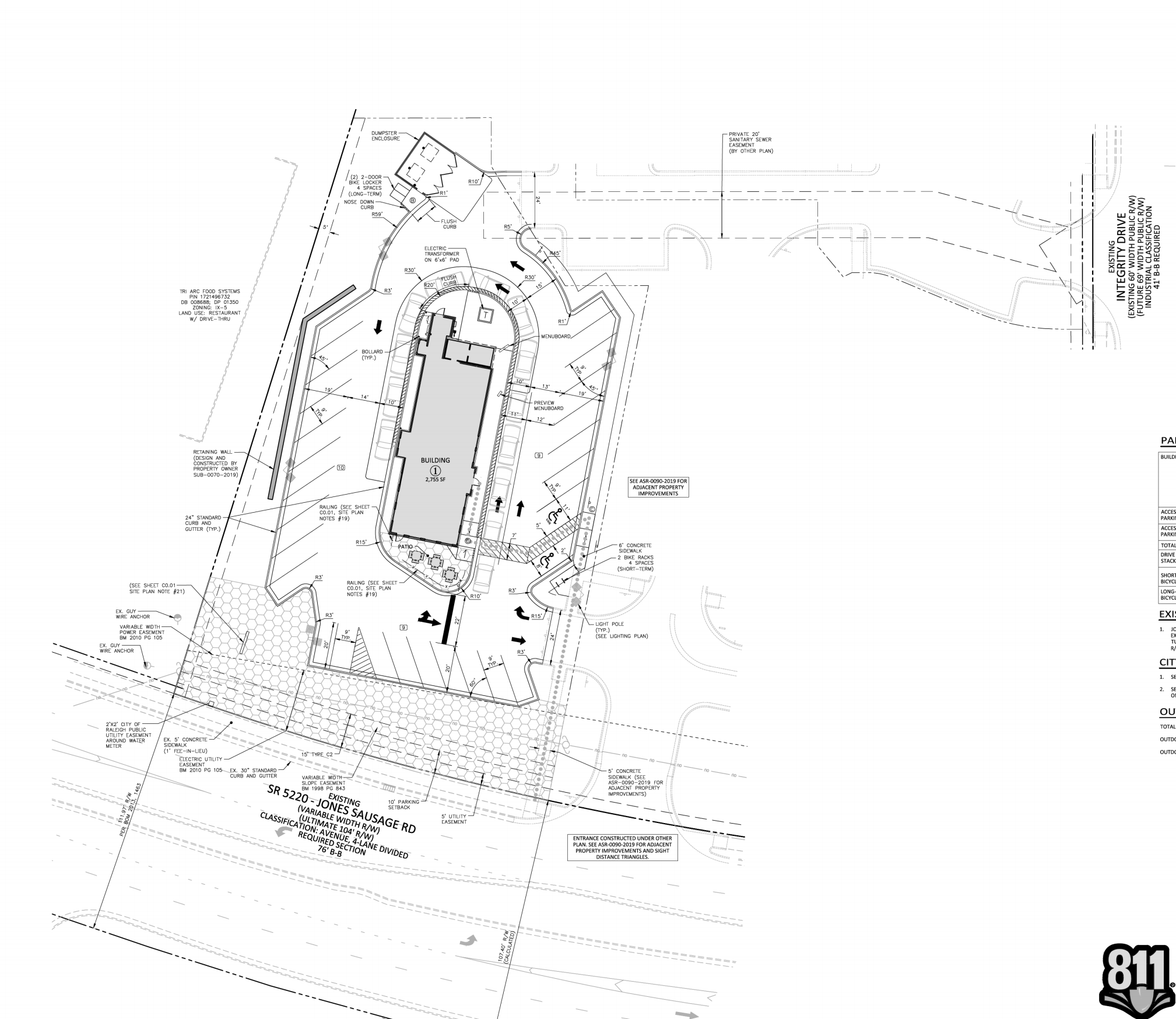
    It looks like it's future phases of Wilsons Walk sub-division.

    upload_2024-6-5_21-7-32.png


    upload_2024-6-5_21-8-7.png
     
    markfnc likes this.
  6. markfnc

    markfnc Well-Known Member

  7. Aqdillman71

    Aqdillman71 Member

    Now that the Hardees on 70 in Clayton (across from Walmart) is now vacant, has anyone heard if anything is going to occupy that building? I am sure it wont be vacant for long (hopefully!).
     
  8. markfnc

    markfnc Well-Known Member

  9. markfnc

    markfnc Well-Known Member

  10. Ryin

    Ryin Member

    markfnc likes this.
  11. Ryin

    Ryin Member

  12. Smithers

    Smithers Well-Known Member

    Has there been any indication yet what's coming to this strip mall, or is it too early? For those that don't come through here often, the building has been stripped down to literally just the frame (doors/windows/walls all removed), and even part of that was removed.
     
  13. markfnc

    markfnc Well-Known Member

    A while back on my project bid list, an Aspen Dental bid a job there. the address matched the old DQ, which is now separated from the rest of the center.
     
    Smithers likes this.
  14. tassy

    tassy Well-Known Member

    The ladies at the hair salon behind it said they heard a Chipotle was going in there. Don't know how true that may or may not be, but their awful excited about it.
     
    markfnc likes this.
  15. markfnc

    markfnc Well-Known Member

    Last edited: Jul 15, 2024
  16. jesse82nc

    jesse82nc Well-Known Member

    I've been wondering when we would get one. 7-11, Sheetz, and Wawa. Now all we need is a Royal Farms in the area lol
     
    markfnc likes this.
  17. markfnc

    markfnc Well-Known Member

    Beech Bluff County Park Construction Update - June 2024 on Vimeo
    video of progress on new park.
     
  18. Smithers

    Smithers Well-Known Member

    As part of whatever they're doing to the roadside at Old Drug Store and Cornwallis Rd, it looks like they're putting traffic lights in at that intersection.
     
    kaci and markfnc like this.
  19. Smithers

    Smithers Well-Known Member

    I found this site plan. From what I can tell, it's going to be on the northwest corner of the NC 42/Old Drug Store intersection (well, northwest if you tilt the map a little. Also, I know the new road across from Old Drug Store has a name, but I can't remember it and it doesn't show on GIS yet). The Wawa will be across the street from Firestone and Auto Zone, not directly across from Circle K.
    upload_2024-7-17_17-48-29.png
     
    markfnc likes this.
  20. Smithers

    Smithers Well-Known Member

    Here's a better overhead view from a geotechnical document:


    upload_2024-7-17_18-6-15.png
     
    markfnc likes this.

Share This Page