New Development Activity in the area

Discussion in 'Discussion Group' started by jesse82nc, Aug 14, 2020.

  1. SonnyBoy

    SonnyBoy Member

    What are they building across the street from St Ann Church on Bus 70 in Clayton?
     
  2. jesse82nc

    jesse82nc Well-Known Member

    I think that is the new AdvanceTEC facility

    Project Title: AdvanceTech Request: 98,280 sq ft Manufacturing Facility/ Warehouse Location: 3900 US 70 Hwy Business West Applicant: Bohler Engineering Status: Second review complete Notes: Submitted for Staff Review and Approval

    [​IMG]
     
    markfnc likes this.
  3. markfnc

    markfnc Well-Known Member

    Eggs up grill to be final place at old Kroger. on Garner Biz facebook site
     
  4. markfnc

    markfnc Well-Known Member

    I don't know about Barber Mill completion, but by the looks of it, it will be a t Inserection not a y, which will be much improved.
    I'm looking forward to I 40 widening between 440 and42 being completed. I hope they open lanes before 40/42 intersection is done. Due to construction on 40, so many people have got off 40 and all roads south are clogged at night. NC 50 between timber and rand rd, Buffaloe rd trying to get onto NC50, Old Stage backs up at 1010, 1010 is backed up from 401 back to Lake Wheeler.
     
    Last edited: Jul 12, 2022
    Rockyv58 likes this.
  5. Rockyv58

    Rockyv58 Well-Known Member


    I'd still like to see them ad a traffic light maybe over at Josephine and Cleveland school Road, add a turn lane on Cleveland school at Watkins. And maybe some over head lights at Cleveland school road at Polenta. Three nights coming home from Smithfield I turned down the wrong street and missed Polenta. When you have a string of cars coming at you I am getting to the age where I get the deer in the headlights look and cannot see where polenta is and have turned into the two developments before cause i could see which street was polenta
     
    markfnc likes this.
  6. Smithers

    Smithers Well-Known Member

    Does anyone know what they're doing across from the new Food Lion on 50 near 42? It looks like they're adding another lane, but only for a short run between NC 42 and Brack Penny Rd. Maybe they're adding a center lane to turn into Sheetz and Food Lion? But if that's the case, it seems silly they would have spent all that money on the concrete divider they just put in at the Food Lion driveway. Maybe a left turn lane onto Brack Penny, but it doesn't seem like there's enough traffic to need that.

    Or, instead of all the speculation, I could just leave the question by itself... What are they doing across from Food Lion?
     
  7. SonnyBoy

    SonnyBoy Member

    Any one know of any plans for a shopping center in the West Smithfield area?
    A lot of earth moving at Swift Creek Road and US 70 for the overpass.
    That usually attracts retail.
     
  8. SonnyBoy

    SonnyBoy Member

    I was at St Ann Church today and the property they are building across the street, according to the signage, is going to be a charter school.
     
  9. jesse82nc

    jesse82nc Well-Known Member

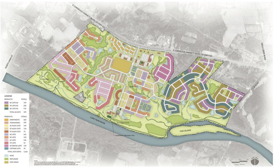
    Raleigh developer plans enormous community – 2,250 homes – in Harnett County (just south of JoCo)

    upload_2022-1-6_7-45-35.png

    Greenfield Communities recently closed on 820 acres in Harnett County for nearly $12 million, according to deeds filed Dec. 29. The land sits along the Cape Fear River and U.S. Highway 421 between downtown Lillington and Campbell University.
    On the land Greenfield Communities is planning to build a community called Capeton, which will include 2,250 residential units consisting of single-family homes, townhomes, cottages, multi-family and adult living. Plans also call for a grocery store-anchored shopping center, an office park, a 2.5-mile riverfront greenway nature trail, and a riverfront amphitheater.

    The company said development is scheduled to start in 2023.

    https://www.google.com/maps/place/3...3c5320049e!7e2!8m2!3d35.4079006!4d-78.7910125
     
    panthersdude2001 likes this.
  10. Rockyv58

    Rockyv58 Well-Known Member

    got this from the next door app

     
    markfnc and jesse82nc like this.
  11. jesse82nc

    jesse82nc Well-Known Member

    https://www.bizjournals.com/triangl...6jbqDaMDQ3XnFD5JyJW2ZFhBPqm72Oz_ry2WyEPd9Hr74

    upload_2022-1-9_18-59-54.png

    One of the most active home developers in Johnston County is planning another community.

    RiverWild purchased the RiverWood Ranch community in Clayton at the end of December with plans to build 202 single-family homes on the land with construction slated to start this summer. The land sits near the Wake County-Johnston County border off Medlin Road.

    RiverWild purchased the land from Fred Smith Jr., a longtime Triangle businessman – he leads Fred Smith Company Ranch in Johnston County. His son, Reid Smith, runs RiverWild.

    "Our family started Riverwood Athletic Club in the early 2000s, and it's an honor to get to complete the project," Reid Smith said in a statement. "As a second generation builder, it's exciting to get to grow with the community and create spaces for new generations to make Clayton home."

    Johnston County records show an LLC addressed to RiverWild's office in Clayton purchased the 78-acre tract of land for $2.8 million, according to a deed filed Dec. 29. RiverWild plans to leave 32 acres open and offer a variety of lot sizes in the community.

    RiverWild is one of the most active developers in Johnston County, which was the fastest-growing county in North Carolina during the 2010s, according to U.S. Census data.

    Some of the company's other projects in the county include Ashcroft Section 2 in Clayton, which calls for 293 single-family units, 299 townhome units, 180 apartment units and 105,000 square feet of commercial space. Academy Pointe will include 133 single-family homes, 110 apartments and 12 townhomes. Riverwood Golf Section Two is slated to bring 432 single-family home lots, 74 townhome lots and 220 apartments to Clayton.

    https://www.google.com/maps/place/3...2afaeb5a87!7e2!8m2!3d35.6993236!4d-78.4205292
     
  12. Rockyv58

    Rockyv58 Well-Known Member

    another drone video. Barber Mill road
     
    markfnc and jesse82nc like this.
  13. Rockyv58

    Rockyv58 Well-Known Member

    and another drone video of 540


    snagged off of the next door app
     
    markfnc likes this.
  14. jesse82nc

    jesse82nc Well-Known Member

  15. markfnc

    markfnc Well-Known Member

    thanks for posting those Rockyv58
     
  16. panthersdude2001

    panthersdude2001 Well-Known Member

    Possible Walmart?
    Also, I heard that Longhorn, Chick-Fil-A, and Popeyes are coming too! :eek::eek:
    Also, if they mean Lowes Foods (as a grocery store), this will be the first time since 1998, where Byrd's existed in the now known as Crossroads Church, moved over to where Carlie C's was in 1990. :(
     
  17. jesse82nc

    jesse82nc Well-Known Member

    https://www.bizjournals.com/triangl...4IGAW4eYR2R4eLwWBQCmmJIpo4O4s2xPmjNq6ugf6ps_8

    $7M deal opens door for 300 apartments in Johnston County community

    A prominent North Carolina multifamily developer is looking to bring over 300 new apartments to Johnston County.

    Ardmore Residential, based in Greensboro, bought a 15-acre parcel near Clayton for $7.26 million, according to a deed filed Dec. 29. On the property, the company is planning to build an apartment complex with up to 330 units within the massive Flowers Plantation master-planned community.

    The land is located near the intersection of N.C. Highway 42 and Buffalo Road about half an hour southeast of downtown Raleigh.

    https://www.google.com/maps/place/3...25e36aa97a9!7e2!8m2!3d35.650372!4d-78.3448124
     
  18. somethingNother

    somethingNother Active Member

  19. markfnc

    markfnc Well-Known Member

    I see on nextdoor that Dunkin Donuts is going in the old Burger King at 40/42. Anyone heard that? nothing on my construction bid sites. I thought it was being tore down at 1st, but its definitely being renovated. new canopies are orange, so could be Dunkin. I wonder if owners knows how hard it will be getting in and out of there once construction starts and after its finished.
     
    Last edited: Jul 12, 2022
    panthersdude2001 likes this.
  20. jesse82nc

    jesse82nc Well-Known Member

    That is going to completely suck to get in and out once the intersection is changed later this year.
     

Share This Page