New Development Activity in the area

Discussion in 'Discussion Group' started by jesse82nc, Aug 14, 2020.

  1. markfnc

    markfnc Well-Known Member

  2. jesse82nc

    jesse82nc Well-Known Member

    My speculation years ago lined up pretty well with what the developer showed. They just have two roads running N/S, so the actual connection to Timber was a little farther west.
     
  3. markfnc

    markfnc Well-Known Member

    And now that developemnt will include JoCo 1st Target.
    Target to open new store in huge Eastfield Crossing development - Triangle Business Journal (bizjournals.com)
    Eastfield Crossing — Adventure Development, LLC
     
    Last edited: Jan 4, 2024
    jesse82nc likes this.
  4. jesse82nc

    jesse82nc Well-Known Member

  5. lgb0250

    lgb0250 Well-Known Member

    Came out of O’Reilly Auto on 42 just a little while ago and saw a sign directly across the street announcing the future home of Tidal Wave Auto Spa! Hopefully they have done their due diligence well since the one directly across from them is on their second owner so far and doesn’t look like they are doing any better than 5he previous owner.
     
  6. jesse82nc

    jesse82nc Well-Known Member

    That sign has been up almost a year now (long enough that it is on Google Street View), I've been wondering if they bailed out since there has been no progress. Strangely enough those properties have all been owned by Donald West since at least 2014 and haven't changed hands yet.
     
    lgb0250 likes this.
  7. Ryin

    Ryin Member

    markfnc likes this.
  8. jesse82nc

    jesse82nc Well-Known Member

    That article is from 2021 and is about the Aldi's that they built and opened on NC42 across from Walmart near 40/42.

    This is the article for the new one - https://www.bizjournals.com/triangl...ry-store-plan-first-spot-johnston-county.html

    The Chicfila was a rumor that is spread for a different location every few months.
     
    lgb0250, Ryin and markfnc like this.
  9. Ryin

    Ryin Member


    My bad I saw they used the same picture. Thanks for posting the proper one
     
  10. markfnc

    markfnc Well-Known Member

    Just checked on JoCo inspections for Garibaldi going into old Pizza Inn/Golder Corral. Still no inspections since July 25. I wonder what is going on?
     
  11. jesse82nc

    jesse82nc Well-Known Member



    Recent update, it's getting close
     
    tassy and markfnc like this.
  12. Ryin

    Ryin Member

    Where is this located exactly?
     
  13. Ryin

    Ryin Member

    Hopefully with the possibility of Aldi coming they will make a left turn entrance for those coming from my neck of the woods out off Little creek. But it doesn’t look like it.
     
  14. markfnc

    markfnc Well-Known Member

    40/42 where the golden corral was, that later turned into the Pizza Inn. Behind Panera, that used to be Applebees.
     
  15. jesse82nc

    jesse82nc Well-Known Member

    A left turn coming from where to go where? Like to turn left into Aldi's coming from Ranch Road?

    The red dashes are existing roads, the yellow dash is the new road. The intersection with Tulip (behind Sheetz) I thought would allow all directions to flow.

    aldi.jpg
     
  16. jesse82nc

    jesse82nc Well-Known Member

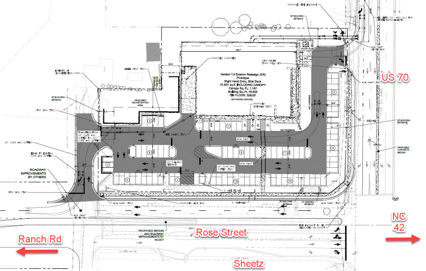
    It actually does show no access. Sorry for the low quality, it was all that is public at this time.

    This is the proposed Aldi's

    upload_2024-1-17_18-39-32.png
     
  17. Ryin

    Ryin Member

    Yeah I was talking about coming from Ranch. Thanks for the picture
     
  18. markfnc

    markfnc Well-Known Member

    lgb0250, Rockyv58 and jesse82nc like this.
  19. Rockyv58

    Rockyv58 Well-Known Member

  20. jesse82nc

    jesse82nc Well-Known Member

    Agreed, I feel like the area in this circle is really missing out on a lot. Inside this area there is no Target, Publix, Harris Teeter, Wegmans. All we get are a bunch of Food Lions and Walmarts really.


    upload_2024-1-31_11-10-44.png
     
    markfnc and Rockyv58 like this.

Share This Page